因愛,無礙 - 里斯本的永續住宅
農曆九月初九重陽節,這一天象徵著長久與長壽,自古以來便是敬老、登高、祈福的日子。重陽節提醒我們關懷家中長輩,學習他們的智慧與經驗,並強調孝道和家族聯繫的重要性。在這個充滿關懷的時刻,探討如何為年長者與弱勢群體創造更友善的生活環境顯得尤為重要。葡萄牙里斯本的 Boavista District 博阿維斯塔社區正是一個友善建築典範,展示了在現代建築中融合無障礙設計、永續發展與經濟實惠性。
無障礙設計:樓梯不再是障礙
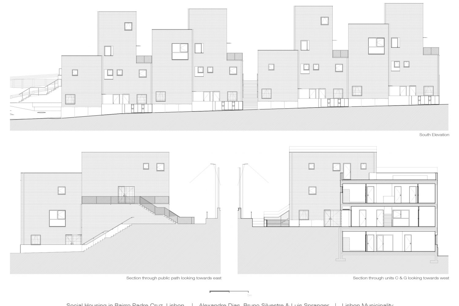
2011年,葡萄牙里斯本市政府在博阿維斯塔區開啟一連串的住宅改造計畫。由於住宅位於坡地,建築團隊利用街道的高低落差,打造出超過80%的無障礙空間。房屋的一側是坡道,另一側則有平台與樓梯連結,居民無需繞道,即可自由進出樓層。這樣的設計大大提升年長者和行動不便者的便利性,真正實現空間的包容性。

博阿維斯塔區的住宅外觀(圖片來源:brunosilvestr ARCHITECTURE)

設計圖上可見一樓與二樓皆設有出入口(圖片來源:brunosilvestr ARCHITECTURE)
友善衛浴設計:舒適與美觀兼具
除了樓層通道的無障礙設計,衛浴設備也相當用心。為設計無門檻的淋浴間,選用高硬度玻璃門和防滑地板,讓淋浴間無須門檻便可擁有穩固的支撐性。這些改進不僅提高安全性,也使得空間視覺上更為寬敞,增強整體的美觀效果。這樣的設計不僅提升了使用便利性,也使得空間的運用更加靈活舒適。

考量美觀與舒適度為前提打造無障礙空間(圖片來源:brunosilvestr ARCHITECTURE)

屋內配置圖(圖片來源:brunosilvestr ARCHITECTURE)
經濟實惠的建材選用
綠建築能降低能源消耗,但其建造成本也可能較高,為此歐盟發起了 Social Green 專案,致力在歐洲8個國家推進社會住宅的永續發展,旨在提供經濟實惠的綠建築選擇。里斯本市政府在此建案中,也選用了耐用且成本效益高的建材,並考慮了未來維修費用,期望每位居民都能享受到綠建築帶來的舒適與福利。

博阿維斯塔社區的公共運動空間(圖片來源:brunosilvestr ARCHITECTURE )
傳遞正向價值的建築設計理念
里斯本政府和建築團隊攜手合作,透過無障礙的設計造福不便的居民,展現敬老關懷與永續發展相結合的建築理念。如同五感十築致力十築友善,體現社會多元群體永續共存的居住環境,實踐未來城市的建築典範。
*文內出現的商標及圖像版權均屬其合法持有人,僅供資訊傳遞之用,無商業用途。如無意侵犯對您的權益,請及時聯繫我們處理。


